Nos encontramos con un pequeño cementerio que data de los años 60, conformado como tantos otros de su época, con una disposición simétrica en torno a un eje axial, en cuyo perímetro se amontonan en la actualidad nichos tan variopintos como las fosas diseminadas por las zonas de enterramiento del mismo. De esta guisa allá donde miremos, la vista tropieza con la muerte, aunque no en un modo simbólico ni trascendente ni mucho menos bello, sino con el residuo más anecdótico de la misma, la parafernalia funeraria que suele dar buena cuenta de la religión del difunto así como del gusto de sus seres queridos, anecdotario que preside e impregna todo el espacio actual, y que sin más organización que la colonización del espacio basado en la racionalidad, ha terminado por colmatar el espacio de este cementerio, transformando un espacio donde deberían imperar valores como la reflexión o la trascendencia, en un lugar desangelado y en ocasiones lúgubre.

La intervención pretende realizar una ampliación donde se corrijan las carencias detectadas, dotando al espacio de nueva creación de la necesaria solemnidad y belleza, donde además de permitir ubicar a los difuntos, se posibilite la coexistencia de las diferentes culturas funerarias (confesionales de distintas religiones y aconfesionales) con la suficiente intimidad, sin que ninguna se imponga a las demás. Un espacio, que invite a su visita y que dignifique un lugar donde se dan cita sentimientos y creencias diversos, y donde los usuarios puedan reencontrarse con la memoria de sus seres queridos en el ambiente más propicio posible.

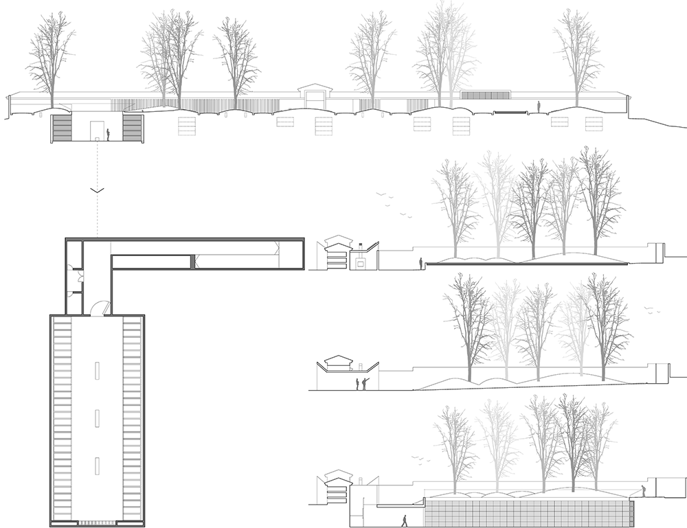
En esencia, la intervención se concibe como un jardín lineal que se adosa al cementerio existente. Dicho jardín se concibe como un “hortus conclusus”, un lugar para la contemplación y la reflexión, un espacio para ser recorrido y observado, donde la naturaleza tiene un papel protagonista.

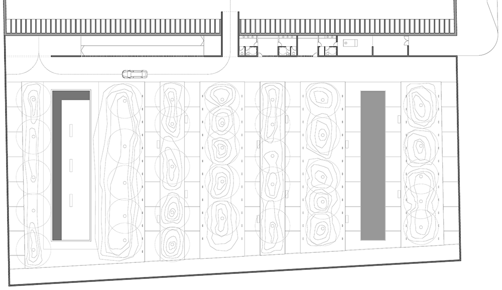
En cuanto a su organización en planta, se estructura de forma similar a un código de barras, es decir, el jardín se compone de barras temáticas de anchos distintos pero idéntica longitud. Las barras las componen fundamentalmente recorridos peatonales que se alternan con túmulos de césped de cierta altura coronados por hileras de abedules. Estas zonas verdes acotan pasajes de cierta intimidad donde se ubican distintas zonas de enterramiento de libre disposición, y la zona de enterramiento aconfesional. A esta sensación de intimidad contribuye el arbolado, pues en el sentido longitudinal del recorrido enmarca los distintos pasajes, y transversalmente opera como filtro como si de un bosque de alfileres se tratase, otorgando además al conjunto la riqueza cromática de su coloración a lo largo de las estaciones.

En esta disposición se intercalan así mismo otro tipo de usos o de “barras”, un estanque próximo al lindero Oeste, para responder a la necesidad de verter en él las cenizas de los difuntos, y un vacío, un espacio deprimido próximo al lindero Este, donde se ubica la zona la zona de enterramiento de mayor densidad, compuesta por 300 unidades de nichos y 55 de columbarios. Estos elementos, el agua, la tierra y el cielo (enmarcado desde el nivel deprimido), simbolizan y resumen los elementos de la naturaleza más ampliamente relacionados con los usos funerarios.

Todo este conjunto a su vez, se completa con un edificio de servicio y un núcleo de comunicación lenta que permite la comunicación entre el nivel general y el nivel deprimido. Estos usos se disponen hábilmente en el espacio que libera la envolvente de nuestra actuación en relación al cementerio existente. Se trata de un espacio “entre muros” que tiene la doble finalidad de ocultar los espacios de servicio y al tiempo subrayar el contraste entre lo nuevo y lo viejo, evidenciando una separación física, aunque aparente, entre ambos.

Finalmente dicha envolvente, como si de un elemento “animado” se tratase, no solo resuelve la articulación entre ambos espacios, sino que además concreta el acceso a la ampliación. Éste se produce mediante la penetración de este nuevo “ente” en el cementerio existente, atravesando la tapia ciega que remata la torre situada en el lindero Norte, e invitando al espectador a prolongar el recorrido axial por el que ingresó en un inicio al cementerio, aunque deparándole una experiencia muy distinta una vez atravesado este nuevo umbral.

Con respecto a los elementos materiales, se propone resolver la intervención con el menor número de ellos posible. Destacan de entre ellos dos, el hormigón y la vegetación. Esta decisión se toma con el doble propósito de conseguir un entorno homogéneo y neutro que contribuya a subrayar la serenidad del entorno, y así mismo, por razones de economía.

El hormigón armado se utiliza en todos los elementos tectónicos de la propuesta. Todos los paramentos verticales principales (cerramiento perimetral, muros y cerramientos de fachada) se ejecutan en hormigón armado acabado en tablilla de madera en posición vertical. Un acabado sencillo que suscita en el espectador la sensación de que estos elementos “emergen” del terreno, que siempre pertenecieron a él. Por otro lado, los paramentos horizontales se resuelven mediante losas (en el edificio de servicio) o mediante soleras de hormigón pulido en todo el recorrido peatonal o mixto de la intervención. Estas últimas se ejecutan intercalando juntas abiertas donde crecerá el césped.

La vegetación propuesta se reduce a solo dos tipos, zonas de césped en los túmulos que separan las zonas de enterramiento en superficie, y el arbolado, integrado por hileras de abedules. Un árbol autóctono de Palencia de escaso o nulo mantenimiento y muy apropiado al clima frío y húmedo de la zona, de gran valor ornamental por su corteza plateada y el colorido que adquiere su follaje durante el otoño, y que además posee significado simbólico relacionado con la muerte en diversas culturas y religiones (para el cristianismo simboliza la entrada en el paraíso).

Área: Arquitectura

Título: Ampliación del cementerio de Guardo

Situación: Guardo, Palencia

Fecha: 2015

Superficie: 4.345,70 m2

PEM: 200.000 euros

Cliente: Ayuntamiento de Guardo

Origen: Concurso

Estado: Proyecto (AP) | 2º Premio

 

Arquitecto: José Antonio Cantó Hidalgo