Nos encontramos con un edificio pre-existente destinado a Centro Social que en la actualidad no satisface las necesidades del municipio. El nuevo programa de necesidades reclamado, un bar-cafetería, una sala polivalente y los servicios asociados, implica una completa redistribución interior. Al mismo tiempo, su estado de conservación es deficiente y actualizar sus sistemas constructivos y sus instalaciones supondría la práctica renovación de los elementos materiales del edificio en cuestión por lo que se decide demoler el edificio existente y proponer uno ex novo. Por último, cabe destacar el espacio urbano donde el edificio se encuentra. El edificio se enclava en una pequeña área peatonal aislada, anexa a la arteria principal de la localidad y en conexión con la calle Mayor y a través de ella, con los hitos urbanos de la misma. El edificio por tanto ocupa una posición privilegiada para ver y ser visto.

La intervención pretende crear un edificio que optimice su relación con el espacio exterior que le rodea, poniendo en valor ese espacio urbano que supone la plaza Moreno Navarrete, y que la convierta en referencia no solo para los habitantes de Noviercas, sino para cualquiera que atraviese la localidad por la calle La Marta. En definitiva, nuestro primer objetivo es que tanto el edificio con el tratamiento que se propone para el espacio exterior asociado a él, se conviertan en hitos representativos acordes a su carácter de espacio público, todo ello sin renunciar a la contemporaneidad. Por otra parte, queremos proponer un edificio versátil, que pueda amoldarse con flexibilidad a las diversas actividades que un edificio de este tipo suele albergar; desde pequeños eventos culturales a todo tipo de reuniones. Así mismo y no menos importante, pretendemos que el nuevo edificio sea un ejemplo de las mejores prestaciones de confort, funcionalidad y economía, y que pueda ser construido con solvencia y garantía gracias a un sistema constructivo asequible y de fácil ejecución.

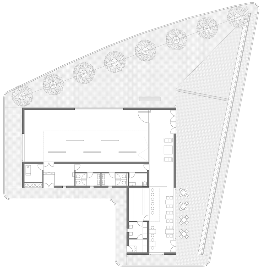
La propuesta sigue las trazas del edificio existente, es decir, consiste igualmente en un edificio en “L”, aunque en este caso el acceso y los usos principales del edificio se sitúan en el área exterior de esta figura, donde pueden aprovechar el soleamiento de las orientaciones sur y este. De este modo, se consigue una organización eficaz que permite asociar los flujos de los visitantes hacia las áreas soleadas de la plaza que circunda el edificio, relegando los lados en sombra a los flujos del personal de servicio o de mantenimiento del edificio. Esta disposición se refleja así mismo en los huecos de las fachadas, los cuales actúan como grandes ojos ciclópeos en las zonas nobles del edificio, enmarcando las vistas a la plaza y a la calle mayor en el caso de la sala polivalente, o hacia la calle La Marta en el bar-cafetería; y permitiendo así mismo mostrar el espacio interior de estas estancias, deliberadamente cálido y extrovertido para atraer hacia sí a los transeúntes. Por el contrario, las fachadas de los espacios de servicio se dotan de huecos con celosías coplanarias con las fachadas con el fin de mimetizarse con ellas y ocultar la actividad que se desarrolla tras ellos.

Con respecto a la organización de los espacios destinados al público, el bar-cafetería y la sala polivalente, estos se sitúan respectivamente en las caras soleadas de los brazos de la “L”, a los que se accede por el vestíbulo de acceso el cual se separa de estos mediante mamparas correderas que permiten incorporarlo a uno y otro espacio, o incluso convertir en un único espacio todas las estancias, permitiendo pues al  edificio adaptarse a eventos de distinta magnitud. Esta flexibilidad también se refleja en que se ha posibilitado que el bar-cafetería pueda operar con independencia del resto del edificio, economizando recursos para su funcionamiento.

Finalmente, se plantea la ordenación del espacio exterior asociado a la edificación. Una operación que supone tan solo eliminar las barreras arquitectónicas que suponen los bruscos cambios de nivel existentes mediante el pavimentado con el mismo adoquín existente en la actualidad de toda la plaza. Así mismo, se distribuyen los árboles existentes en el flanco Este con el fin de acotar un espacio limpio entre la plaza y el edificio, el cual se cierra por su flanco Sur con un muro que sirve de antepecho a la bajada por la calle La Marta, y que servirá de apoyo a la vegetación trepadora plantada en la jardinera lineal junto al arranque de este muro. De esta guisa, se consigue un espacio urbano sencillo y claro que actúa en simbiosis con la edificación.

Con respecto a su definición constructiva y material, se proyecta un edificio desde el respeto a los parámetros estéticos de las normas urbanísticas y a los valores de la arquitectura tradicional. Prueba de ello es la utilización de muros de carga como estructura portante, la madera como elemento característico en la resolución de las carpinterías exteriores e interiores y como elemento cualificador de los espacios nobles, y el énfasis en la cubierta del edificio como elemento icónico y representativo. Sin embargo, la propuesta no renuncia a la contemporaneidad, y aun desde el respeto a los valores antes mencionados, propone una nueva lógica de utilización de estos elementos tradicionales explotando su expresividad. En lo relativo a la utilización de criterios medioambientales de diseño, la propuesta cuenta con una envolvente térmica que permitirá reducir ostensiblemente el consumo energético del edificio, y preservar las condiciones de temperatura y humedad que se decidan en cada momento. Por otra parte, se dota al edificio del sistema de calefacción más eficiente, económico y limpio que existe, el suelo radiante, el cual se complementa con un sistema de aire acondicionado (ventilación+frío+calor) que aprovecha los ciclos naturales de convección que se dan por la geometría de la sección del edificio para mejorar su rendimiento. La propuesta pues, pone al servicio de la eficiencia energética tanto  los sistemas tradicionales de acondicionamiento como los medios actuales.

Área: Arquitectura

Título: Centro Social de Noviercas

Situación: Noviercas, Soria

Fecha: 2016

Superficie: 328,49 m2

PEM: 255.081,84  euros

Cliente: Ayuntamiento de Noviercas

Origen: Concurso de ideas

Estado: Proyecto (AP)

 

Arquitecto: José Antonio Cantó Hidalgo