El Concurso convocado por la Consejería de Infraestructuras y Transportes de la Generalidad Valenciana para la concesión de la gestión de servicios públicos portuarios en la zona náutico-deportiva 3 en el Puerto de Denia, se consideraba, junto a las instalaciones náuticas precisas, una edificación adecuada para el control de la gestión de esas instalaciones, las actividades sociales propias, la prestación de los servicios náuticos y atención al usuario, potenciando especialmente la permeabilidad ciudad-zona náutica en un doble sentido: el de la accesibilidad propiamente dicha y el de la compatibilidad con la zona marítima y el entorno urbano.

Una superficie de madera apoyada en el suelo, un recorte y un pliegue generan un marco que encuadra el doble paisaje desde donde puede contemplarse la ciudad dominada por el castillo y el puerto deportivo, el mar abierto y el horizonte. Bajo el gran dintel se acomoda el programa, una zona cerrada donde se ubican las funciones principales del edificio, y una zona abierta, complemento exterior de la zona de restauración y cafetería. Con esta sencilla operación formal se introduce la menor intrusión visual posible, al tiempo que posibilita un nuevo y cualificado punto de vista de la fachada marítima de la ciudad, con un lenguaje claramente alusivo a la actividad marítima que allí se produce.

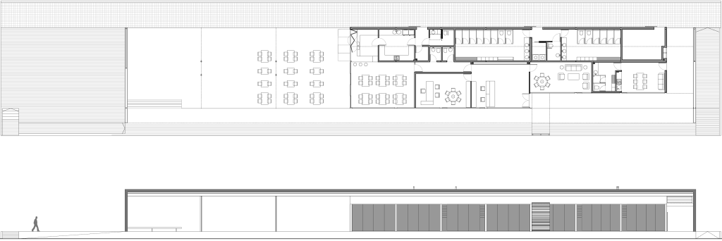
El edificio, de forma rectangular y de una sola planta, desarrolla su  programa de necesidades bajo la envolvente común que constituye la cubierta, y que consta de las siguientes áreas:

-Administración Control de embarcaciones y Capitanía

-Instalaciones y Servicios para usuarios

-Instalaciones y Servicios de marinería

-Zona de restauración y estancia.

El programa se organiza transversalmente en dos zonas, una zona exterior donde se ubica la terraza del restaurante–cafetería, y un área cubierta y cerrada donde se ubica el resto del programa. A su vez, longitudinalmente, el programa se escinde igualmente en dos zonas, una de servicios, (instalaciones y servicios para usuarios y marinería) que presenta una fachada ciega y masiva hacia la zona de aparcamientos, y otra donde se sitúan los usos de atención al público, (zona de restauración y estancia, administración, control de embarcaciones y capitanía) completamente transparente y abierta hacia la ciudad y al puerto deportivo.

Así pues, bajo una misma envolvente se logra conciliar todas las actividades propias del edificio, al tiempo que se proporciona un lugar cualificado desde el que poder ver y ser visto sin renunciar a un lenguaje contemporáneo y respetuoso con el entorno en el que se opera.

Área: Arquitectura

Título: Edificio de servicio para la gestión y atención a los usuarios de la zona naútico-deportiva 3 del Puerto de Denia

Situación: Denia, Alicante

Fecha: 2004-2007

Superficie: 295,20 m2

PEM: 531.995,45 €

Cliente: LICUAS SA

Origen: Concurso. 1º Premio

Estado: Construido 

Arquitectos: Carmen Pérez Molpeces + José Antonio Cantó Hidalgo

Arquitecto técnico: Luis de Diego Fort

Obra incluida en la Muestra de Arquitectura 2006-2007 | Colegio Territorial de Arquitectos de Alicante | Alicante 2008

Obra publicada en ViA Arquitectura | Arquitectura Reciente de Alicante ARA.07 | España ISSN 1888-3702

Obra publicada en Muestras de Arquitectura reciente en Alicante | Colegio Territorial de Arquitectos de Alicante | España ISBN 978-84-617-9562-8