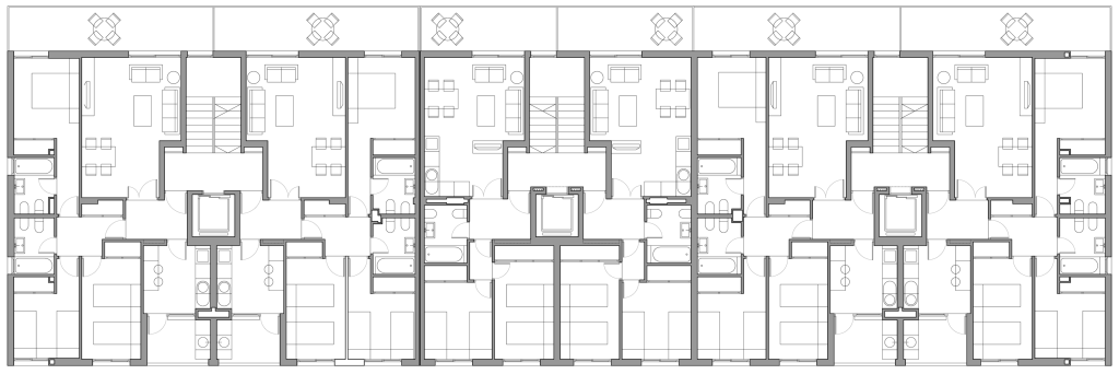
El encargo recibido consistió en actualizar y adecuar a las nuevas necesidades del mercado el proyecto de un bloque de 24 viviendas que en origen perteneció a un conjunto residencial de 1991, y del que solo se ejecutaron 95 de las 119 viviendas que lo componían. Finalmente, tras 8 años de trabajos e innumerables cambios, se ejecutó un edificio 32 viviendas, con dotación de plazas de garaje, trasteros, locales comerciales y piscina comunitaria. Se partió pues, de un proyecto pre-existente sobre el que recaían mil y una trabas de carácter legal, y a las que se le sumaron otras de naturaleza normativa y económica que limitaron extraordinariamente la libertad de actuación.

La solución planteada es un bloque lineal que se escalona para responder a la pendiente del lugar y que posee una estructura organizativa muy sencilla y de fácil lectura. En altura, un zócalo pesado destinado a espacios comerciales sirve de soporte a un cuerpo liviano y luminoso destinado a viviendas que vuela sobre aquel. Este vuelo fue la solución volumétrica propuesta para conservar la edificabilidad y posibilitar una vía rodada impuesta desde el planeamiento urbanístico que mermaba el volumen original del edificio. La transición entre ambos cuerpos se produce gracias a grandes vigas de cuelgue, que en origen se manifestaban en fachada. Estas vigas confinadas entre los paños de ladrillos de ambas zonas pretendían aportar un valor expresivo y plástico a la solución estructural adoptada. En planta, el edificio ofrece una fachada cartesiana hacia el norte donde se encuentra la principal vía pública y a las que vierten los espacios de servicio y dormitorios secundarios. La regularidad de la fachada se ve alterada por dos grandes hendiduras que fragmentan el volumen para introducir enriquecer su lectura. Hacia el sur, el volumen se completa con grandes terrazas lineales a las que vierten salones y dormitorios principales, permitiendo el disfrute de la vista lejana del mar, la piscina comunitaria y la vegetación circundante.

Área: Arquitectura

Título: Edificio de 32 viviendas

Situación: El Campello, Alicante

Fecha: 2006-2014

Superficie: 5.110,75 m2

PEM: 2.110.725,25 euros

Cliente: NG Viviendas SL

Origen: Encargo

Estado: Construido

 

Arquitectos: Alejandro Ybarra Huesa + José Antonio Cantó Hidalgo

Arquitecto técnico: José Luis Pérez Molina