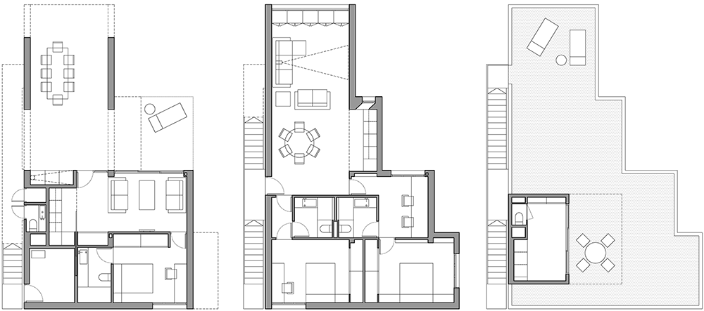
El encargo recibido consiste en la reforma integral de una vivienda unifamiliar y el espacio exterior de parcela asociado a esta. La vivienda en cuestión data de los años 60 y es un buen ejemplo de la arquitectura de la época, aunque su estado de conservación, debido a la falta de mantenimiento y a diversas intervenciones, han terminado por desvirtuar en parte los valores de la misma. Se trata de realizar una nueva distribución de la vivienda con el fin de cumplir con el programa de necesidades dictado por el cliente, del que cabe destacar la necesidad de ubicar un pabellón de invitados independiente en la planta baja y adecuar y optimizar el espacio de jardín y piscina, así como de explotar al máximo las posibilidades de uso de la misma.

Nuestra intervención propone una nueva distribución de los espacios, de tal modo que la vivienda principal se sitúe en planta primera, el pabellón de invitados en planta baja y finalmente, en cubierta, se ubique un espacio de relación y disfrute común.

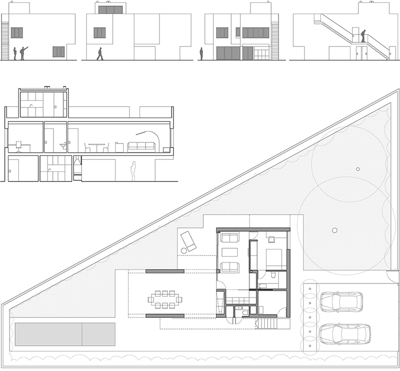
Toda la vivienda se cierra al norte y a las vistas del predio colindante, y se abre por contra al sur y al paisaje. En el flanco norte se ubica el eje de circulación principal, una escalera lineal exterior a la fachada que comunica todos los ámbitos que componen el recorrido de los habitantes normalmente; aparcamiento y acceso en planta baja,  acceso a la vivienda principal en planta primera, acceso al mirador en planta de cubiertas. Y todo ello con independencia física y visual de los posibles huéspedes que se alojen el pabellón de invitados.

Con respecto al tratamiento del espacio exterior, se eliminan todos aquellos elementos que consideramos ajenos o impropios, limitándonos a sanear la volumetría original. Para ello, se tratan las fachadas de forma homogénea mediante la aplicación de un estuco liso de cal, con ello a su vez, se ensalza el volumen y se ponen en valor las cualidades plásticas de la edificación. Finalmente, se disponen zonas ajardinadas y de paso, en función del soleamiento y del nuevo programa respetando el frondoso arbolado existente.

Área: Arquitectura

Título: Reforma integral de una vivienda unifamiliar-Casa MR

Situación: El Altet, Alicante

Fecha: 2014

Superficie: 164,67 m2

PEM: 78.500 euros

Cliente: Privado

Origen: Encargo

Estado: Proyecto (AP)

 

Arquitecto: José Antonio Cantó Hidalgo