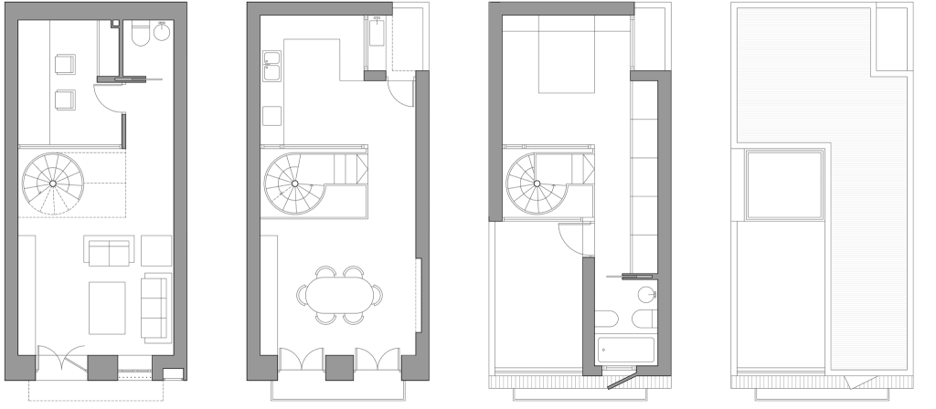
La intervención llevada a cabo, consistió en la demolición integral de una vivienda entre medianeras, de dos plantas, ubicada en el barrio de San Antón de Alicante. La vivienda ocupaba una superficie en planta muy escasa y apenas recibía luz a través de su única fachada. De dicha demolición se conservó únicamente el plano de la fachada, a partir del cual y hacia su interior debía realizarse la reconstrucción de todo el volumen habitable y la elevación de una tercera planta adicional.

Los destinatarios, amantes de la arquitectura, tenían el deseo de explotar al máximo las posibles cualidades espaciales de tan reducido espacio, por lo que decidió hacer de la sección del edificio la protagonista de la intervención. Una escalera de caracol situada en el centro de la planta actúa como eje vertebrador de la vivienda. El espacio ocupado por ella, coronado por un lucernario que introduce luz cenital durante todo el día, funciona como un patio interior al que vierten las distintas estancias de la casa, proporcionando no solo luz natural sino a su vez relaciones visuales cruzadas y en consecuencia potenciando múltiples percepciones del espacio habitable y en definitiva convirtiendo en espacioso lo que antes no lo era, objetivo en definitiva de la intervención. La diferencia entre la fachada pre-existente y la ampliación, se significan en el contraste entre la limpieza del nuevo volumen y la fachada original que data de principio del siglo XX.

Área: Arquitectura

Título: Reforma integral de una vivienda unifamiliar-Casa GNMB

Situación: Alicante

Fecha: 2004-2006

Superficie: 107,85 m2

PEM:   31.707 euros

Cliente: Privado

Origen: Encargo

Estado: Construido

 

Arquitecto: José Antonio Cantó Hidalgo

Arquitecto técnico: Ernesto Pérez Colomina