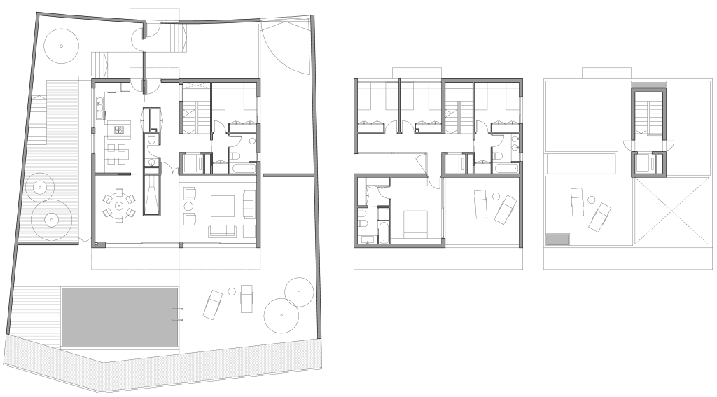
La vivienda proyectada se ubica en el perímetro del Campo de Golf de Alicante. Una zona residencial caracterizada tanto por las vistas de las zonas verdes del campo, como por el heterogéneo paisaje edificado circundante. El proyecto gira en torno a dos ideas principales. Por un lado crear una vivienda capaz de aislarse del entorno incorporando solo las vistas que entendimos de interés, y por otro, dotarla de un espacio exterior privado que permitiera optimizar el uso de la reducida superficie de parcela.

En este sentido se proyectó una vivienda hermética y masiva, un cubo blanco de 11,65 m de arista que muestra dos de sus tres plantas sobre rasante, y en el que se abren los huecos oportunos para iluminar los espacios interiores limitando las vistas del vecindario, y al tiempo, fomentar la sensación de que el campo de Golf se perciba como una extensión de la misma. El espacio exterior asociado a la vivienda se sectoriza en distintos ámbitos espaciales para dar respuesta al programa de necesidades, incorporando al cerramiento de parcela como un elementos más de proyecto en la definición de dichos espacios.

En cuanto a la organización, la vivienda destina un considerable espacio a la planta de sótano donde se sitúan cinco plazas de garaje, instalaciones y una zona de trabajo. Toda la planta se ilumina gracias a un patio inglés que se concibe como un espacio contemplativo al que vierten los espacios estanciales de la planta. En superficie, los espacios principales se orientan al sur y a las vistas, y se iluminan gracias a grandes huecos que pretenden distorsionar la escala doméstica de la vivienda con el fin de distinguirse de su entorno.

Área: Arquitectura

Título: Vivienda unifamiliar-Casa CM

Situación: Alicante

Fecha: 2003-2004

Superficie: 350,41 m2

PEM: 204.231,52 euros

Cliente: Privado

Origen: Encargo

Estado: Construido

 

Arquitectos: Antonio Aracil Pérez + José Antonio Cantó Hidalgo