El objeto del concurso es adecuar un local existente como nueva sede de la demarcación comarcal de Elda-Villena del Colegio territorial de arquitectos de Alicante en la ciudad de Elda.

La propuesta plantea un esquema de sede en la que puedan convivir dos actividades tan distintas como una eficaz gestión colegial y la realización de actos formativos, expositivos, etcétera, sin que debido a lo heterodoxo del lugar, se merme de eficacia y de carácter a la misma.

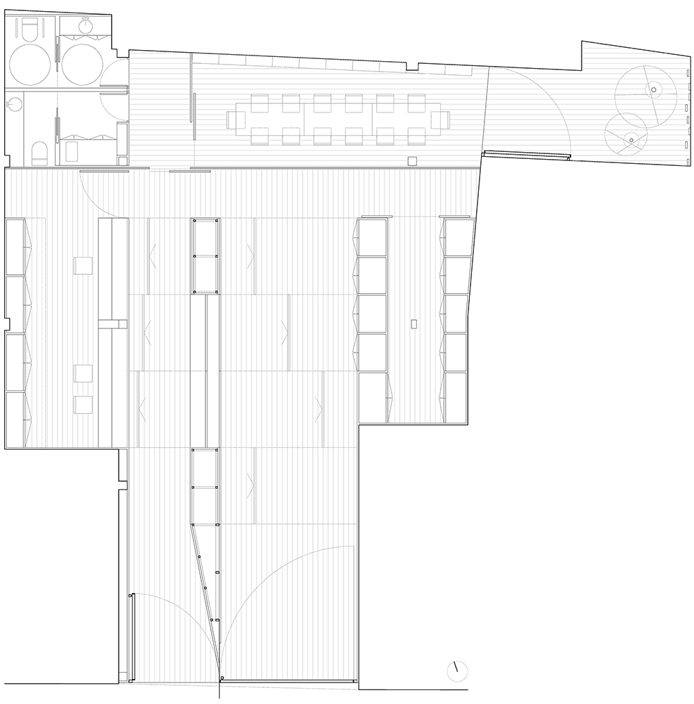
En esta línea, se plantea una solución espacial que aprovecha y enfatiza la tensión existente por proximidad, entre los planos de suelo y techo, que como si de dos gotas de agua se tratara, intentasen alcanzarse la una a la otra, sólo que en este caso, una dislocación de estos dos planos evita su contacto, y provoca un espacio extrusionado donde la división entre el espacio de gestión y la sala polivalente, es sutil pero eficaz, concediendo un carácter dinámico a la primera y estático a la segunda. De este modo se fomenta la idea de una demarcación entendida como punto de gestión rápida para arquitectos, al tiempo que se consigue un espacio limpio y versátil para las diversas actividades que se pretenden.

La estrategia es muy sencilla, una planta compartimentada por barras, donde los dos espacios principales, tramitación+ visado y la sala polivalente, quedan en franca relación con la vía pública y flanqueados por los espacios auxiliares, que les sirven y que regularizan el trazado arbitrario y residual de la planta; Como colofón a esta batería de espacios sin solución de continuidad aparente, se encuentra un plano terso y parlante de vidrio, que funciona como linterna, recogiendo la luz que capta del patio existente, que oculta los servicios, y nos muestra la biblioteca+sala de reuniones, la cual preside al mismo tiempo todos los espacios.

Se ha hecho especial hincapié en poder revelar y apreciar la sección del espacio y en consecuencia su organización, y ello es posible gracias al espacio distribuidor que media entre los espacios de visita y atención al público y los de biblioteca y servicios, es en este espacio donde realmente el espectador toma conciencia de la organización de la sede, al tiempo que “descubre” como pasar de un ámbito a otro, lo cual por otra parte aporta una cierta tensión lúdica que enriquece, a nuestro juicio, la intervención.

Por otro lado, se ha intentado que la pieza central condense la capacidad de provocar diversas situaciones, gracias a un sencillo pero eficaz movimiento de pantallas, que logra según los casos, cegar e independizar el área de gestión, la multiplicación del espacio expositivo y la alteración de la organización espacial, todo ello sin desvirtuar la clara organización espacial que preside el proyecto.

Área: Arquitectura

Título: Sede de la demarcación comarcal de Elda-Villena del Colegio Territorial de Arquitectos de Alicante

Situación: Elda, Alicante

Fecha: 2003

Superficie: 226,88 m2

PEM: 91.700 €

Cliente: CTAA

Origen: Concurso

Estado: Proyecto (AP) | 2º Premio

 

Arquitectos: Marian Cáliz Cámara + Javier Vázquez Ramos + José Antonio Cantó Hidalgo