La solución que se propone, atiende a varios condicionantes: La normativa  urbanística del Plan Especial del Casco Antiguo de Alicante, la reducida dimensión en planta del solar, la necesidad de asumir los restos de un basamento de piedra de un edificio pre-existente, así como la necesaria obligación de consensuar la escala doméstica de los edificios circundantes y la escala pública y representativa que el edificio precisa, y por último la de dotar al edificio de un carácter propio, acorde con los usos y su representación simbólica como sede del Consejo Regulador de la Denominación de Origen.

En virtud de lo dicho, la solución que se propone se materializa en la creación de un edificio de nueva planta, compacto y hermético, a modo de cofre, que ponga en valor los activos que allí se protegen y regulan, y que con esta idea como propósito, se le puedan sumar como valores las pautas formales y compositivas a las que el planeamiento obliga.

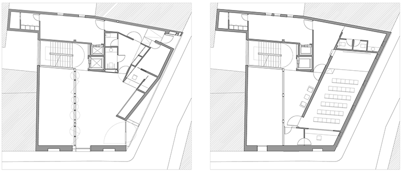
La edificación propuesta se organiza en 5 plantas sobre rasante, con una organización vertical que proporciona una transición en altura desde los espacios de carácter público hacia los espacios de carácter privados y administrativos.

El edificio se organiza en altura, partiendo del basamento pétreo pre-existente, el cual se recupera, restaura e integra respetuosamente en el conjunto de la actuación. En  dicho zócalo al que obliga conservar el PECA, se ubican los dos primeros niveles, siendo estos los de mayor relación con el ámbito público (visitas, exposiciones, conferencias, etc.), sobre él mismo, se desarrollan los tres niveles restantes, que configuran un volumen global, compacto y hermético a modo de cofre, con el que se pretende dar una imagen rotunda y pesada en consonancia con la arquitectura en la que se instaura la actuación aunque re-interpretada desde la contemporaneidad. En dichos niveles, se ubican los usos administrativos, espacios de trabajo y dirección.

Se ha prestado especial atención a la relación entre la obra de nueva planta y lo pre-existente, intentando en todo momento que los dos lenguajes empleados sean plenamente compatibles entre sí y con el entorno.

Respecto de los espacios interiores es la planta baja, el lugar donde dotar de la escala adecuada al edificio, situándose en ella un vestíbulo de relación que permita al espectador tomar conciencia del lugar en el que se encuentra, así como la de proporcionarle una rápida y suficiente información de los espacios que existen en el edificio. A este fin colabora la caja de escalera, hito vertical y referencia constante del edificio, exterior e interiormente, que opera como linterna introduciendo la luz del sur en toda la sección del edificio e iluminando todos los espacios de distribución y relación del mismo. El edificio pues, se concibe como un cofre al exterior y como una delicada vitrina al interior, donde la luz tamizada por los diversos cerramientos vítreos, pretenden evocar el mundo de vino.

Área: Arquitectura

Título: Sede del Consejo Regulador de la Denominación de Origen Alicante 

Situación: Alicante

Fecha: 2003

Superficie: 1.264,50 m2

PEM: 870.275 euros

Cliente: Consejería de Agricultura, Pesca y Alimentación. Comunidad Valenciana

Origen: Encargo

Estado: Construido (No realizamos la Dirección de Obra)

 

Arquitectos: Consuelo Argüelles Álvarez + José Antonio Cantó Hidalgo