El encargo de este proyecto lo realiza un promotor local con el fin de edificar una vivienda unifamiliar para su venta a terceros. El único requisito es que el coste de la misma sea inferior a 100.000 euros y su plazo de ejecución sea de un año como máximo. Con respecto al resto, libertad de actuación. El lugar donde se ubica es una parcela de suelo no urbanizable común en las afueras de la ciudad de Onil, del que cabe destacar las vistas lejanas hacia el sur, una suave pendiente hacia esta orientación, y la presencia de la naturaleza del entorno, arbolado, plantaciones de olivos y vegetación arbustiva en abundancia.

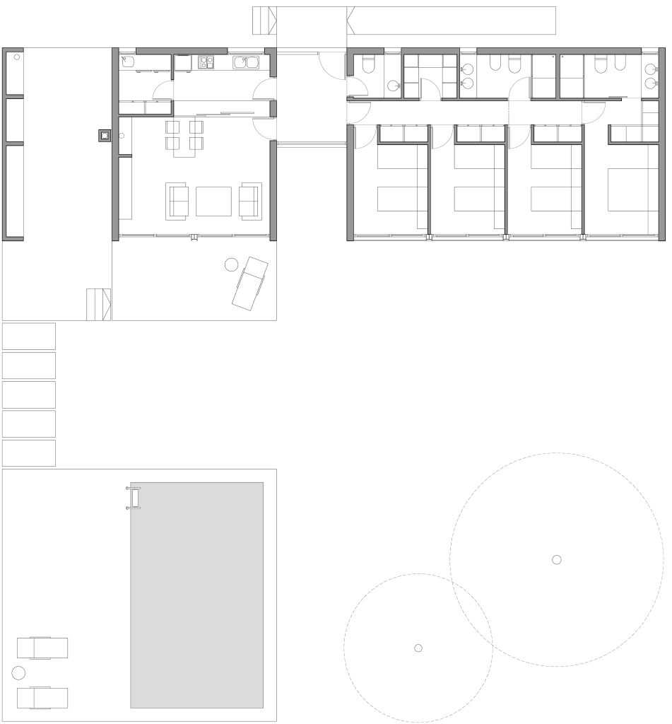
La vivienda se plantea con un programa elemental pero claramente organizado. Un vestíbulo de acceso y distribución articula las zonas de la casa, salón-comedor y cocina situados en el extremo oeste de la vivienda y la zona de dormitorios situada en el extremo opuesto. Así mismo, todo el programa estancial está orientado hacia el sur, buscando las vistas y la luz gracias a grandes huecos, mientras que se relega al norte el paquete de servicios.

La circulación interior se ilumina gracias a un lucernario en la cubierta. La casa se concibe como una atalaya, un lugar desde el que ver y ser visto. Un mirador blanco posado sobre la naturaleza rural, que utiliza una pequeña piscina para incorporar, aun más si cabe, el paisaje circundante.

Toda la vivienda se resuelve haciendo uso de una métrica muy cuidada y de un sistema estructural basado en tan solo dos pórticos distanciados 7 metros entre sí, coincidiendo con la sección de la vivienda, con el fin de liberar la planta y a su vez agilizar la ejecución de la misma. El resto de los sistemas constructivos son los más económicos y conocidos posibles, lo que permitió asumir su ejecución con solvencia, dentro del presupuesto y en plazo.

Área: Arquitectura

Título: Vivienda unifamiliar-Casa LS

Situación: Onil, Alicante

Fecha: 2005-2007

Superficie: 151,37 m2

PEM: 87.750 euros

Cliente: Privado

Origen: Encargo

Estado: Construido

 

Arquitecto: José Antonio Cantó Hidalgo

Arquitecto Técnico: José Antonio Cantó Hidalgo