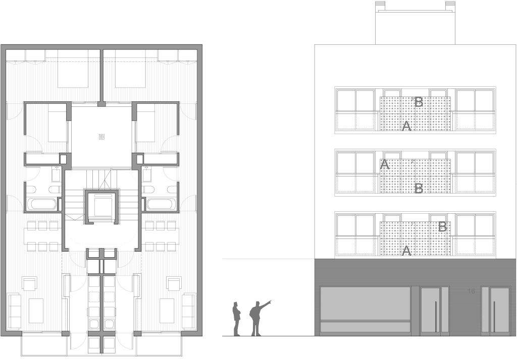
Partimos de un pequeño solar entre medianeras con una sola fachada a la vía pública en la periferia de la ciudad de Castalla. El entorno, jalonado de construcciones degradadas o de escaso valor, posee como único aliciente la vista lejana que desde el lugar podrá tenerse hacia el castillo que preside la ciudad. Los medios económicos y el tiempo de ejecución, escasos. Los medios técnicos y la mano de obra, limitados. Por tanto experimentos, los precisos. El objetivo del cliente no es otro, como casi siempre, que obtener la máxima rentabilidad agotando la edificabilidad y construyendo al mínimo precio posible.

Con estos mimbres, se plantea una solución muy sencilla, de fácil ejecución, con poco margen a la interpretación y el error. Un basamento pesado cuya fachada quede lo más definida posible con el fin de limitar la “creatividad” de los futuros comerciantes, un cuerpo de 3 pisos, liviano y luminoso, a cuya fachada se asoman las terrazas de las viviendas, agrupadas en tres grupos, uno por planta, cual grandes ojos ciclópeos, con el fin de subrayar su función, la  de mirar, cuya existencia queda justificada por las estupendas vistas que desde ellas se tienen. El resto de las cualidades, no son sino aquellas que se desprenden de una geometría ordenada, una métrica rigurosa, y la necesaria sencillez que entendemos debe ir siempre aparejada a la escasez de medios.

Área: Arquitectura

Título: Edificio de 6 viviendas

Situación: Castalla, Alicante

Fecha: 2005-2007

Superficie: 588 m2

PEM: 272.484 euros

Cliente: Inmonil SL

Origen: Encargo

Estado: Construido

 

Arquitecto: José Antonio Cantó Hidalgo

Arquitecto técnico: Luis de Diego Fort